Dorothy and Marshall

Dorothy and Marshall - Bromley

Dorothy and Marshall is a new restaurant in Bromley, which is set in a unique and historic building. Originally a 1906 local government building, it was built to impress. Tall ceilings, arched windows, columns and impressive large doors make this Grade II listed building something special and part of history.

Recently the building was tastefully renovated, with sage green and a warm dark cream, keeping a really elegant feel to the interior.

However, the exterior was certainly not forgotten. In keeping with the tasteful elegance of the interior, the exterior is equally as beautiful. Lavender in the planters, adds both colour and a faint perfume to the area. Whilst the Oliver Chair and Sofa offer comfort to guests. Blankets have been provided for those wishing to relax outside into the evening.

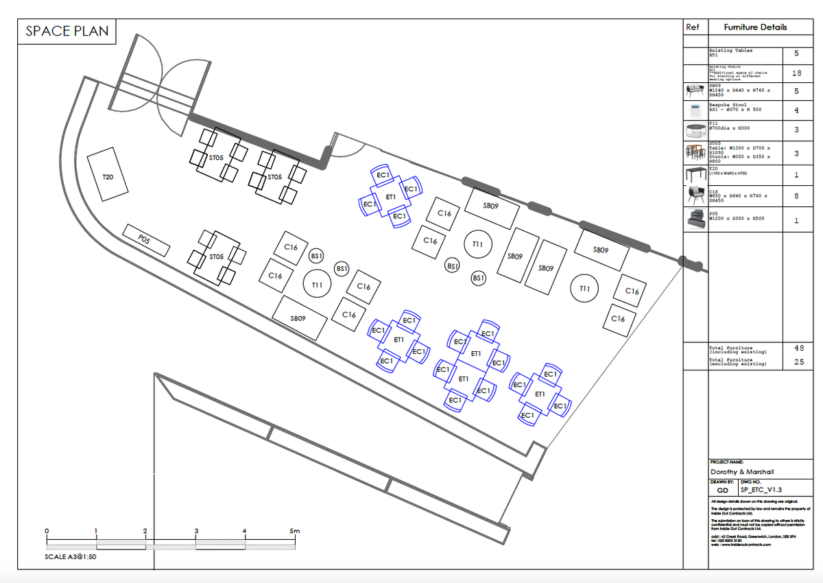
Inside Out offers a complimentary space planning service, which on this occasion was used, to ensure the furniture selected would be the perfect selection.

It was a real pleasure to have been apart of this beautiful project, which enriches the area with an elegant and tasteful restaurant and cocktail bar.

Dorothy and Marshall
Space Plan Created By Inside Out Design Team

Dorothy and Marshall Gallery

Watch the Video

Do you have a question?

You can request a call with one of our creative furniture experts today.

Let us know when is the best time and method to contact you and we will get in touch to discuss your query or project.

Caferestaurant gif

Useful Resource | Restaurant Furniture Guide

Are you researching products for your next project? Download our helpful cafe and restaurant furniture guide. Perfect for inspiration.

Looking for a particular product?

Contact Us

Inside inspiration

Join us on Instagram to follow our recent projects.

Become an Insider! Get our inside scoop on trends and designs to inspire.
Read our Privacy Policy